Главная » Проекты домов » Эстонский проект дома MAAR 135
![]() |
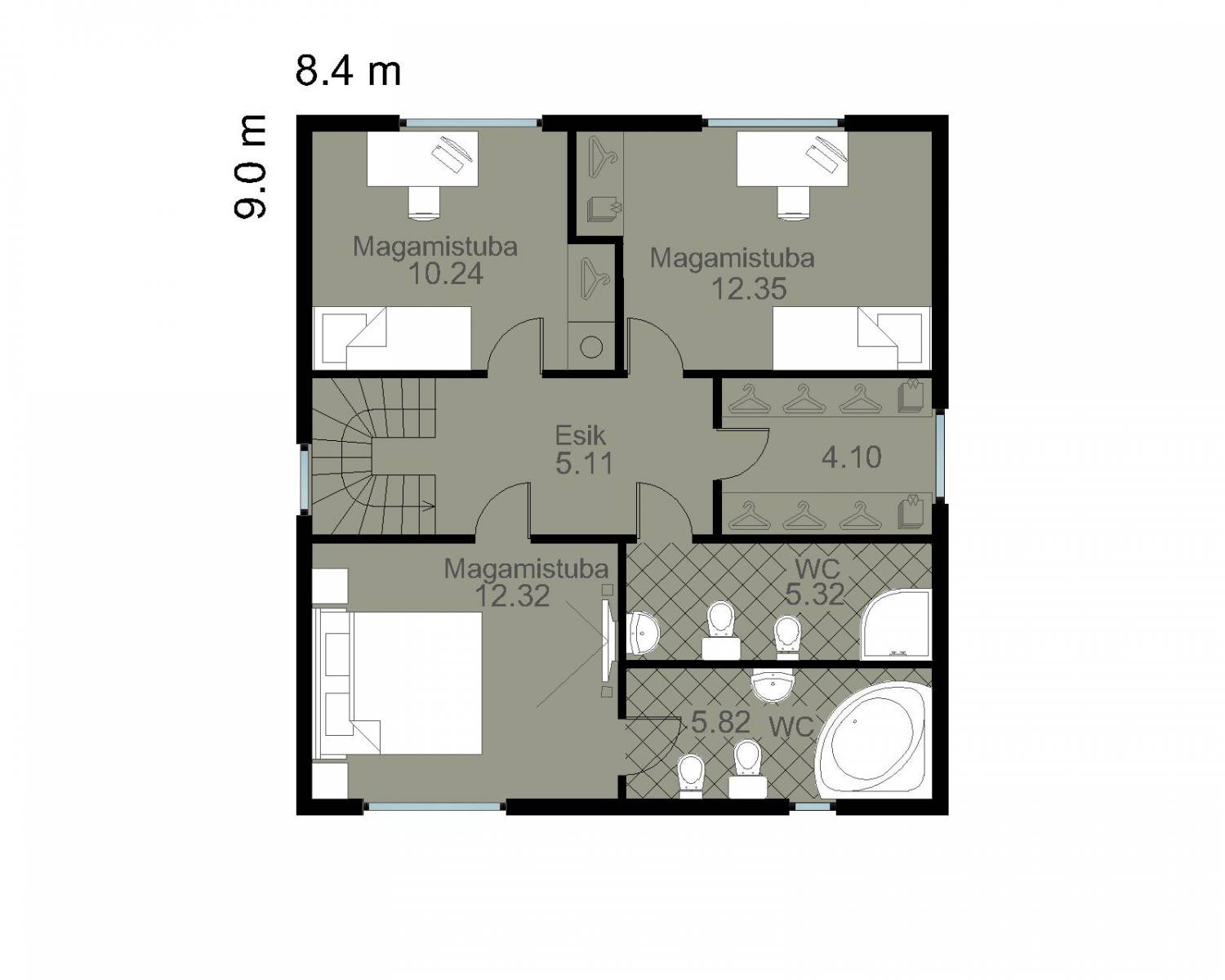
Эстонский проект дома MAAR 135Sобщая: 160 м2 Sжилая: 151 м2 Этажей: 1,5 Спален: 4 Гараж: нет Стоимость: запроситьНаправить запрос*
Нажимая на кнопку отправить заказ, вы подтверждаете свое согласие с уcловиями политики конфиденциальности
|
| Наименование |
START | SMART | SPACE |
| Элементы наружных стен в соответствии с выбранной системой конструкции Нижняя обвязка Верхняя обвязка Дополнительный пиломатериал по проекту |
V | V | V |
| Окна в соответствии с выбранной системой конструкции |
V | V | V |
| Утепленные входные двери. Количество – в соответствии с проектом. | V | V | V |
| Стропильная система в соответствии с выбранной системой конструкции Кровельная обрешетка. Обрешетка для вентиляции 19 х 40 мм. Влагозащитная пленка. Балки крыши (если необходимы). |
V | V | V |
| Несущие балки перекрытия 45 х 200 мм с шагом по проекту. Детали крепежа (включая анкерные гвозди). |
V | V | |
| Пол второго этажа – шпунтованная ДСП 22 мм (для домов со вторым этажом) | V | V | |
| Каркас несущих стен, 45 х 150 мм (если есть в проекте) | V | V | V |
| Каркас межкомнатных перегородок, 45 x 120 мм | V | V | |
| Сверхпрочный гипсокартон 15мм на все внутренние стены | V | V | |
| Гипсокартон 9мм на потолок | V | V | |
| Обрешетка под потолочный гипсокартон 45 х 45 мм | V | V | |
| Металлочерепица | V | V | |
| Утеплитель на крышу, перекрытие, и перегородки | V | ||
| Доска для подшивки карнизов и свесов | V | V | V |
| Деревянная облицовка для фасада 145 х 20, окрашена в 2 слоя в заводских условиях. | V | V | |
| Обрешетка для крепления облицовки | V | V | |
| Декоративные наличники | V | V | |
| Ограждения террасы | V | V | |
| Водоотливы для окон | V | V | |
| Импрегнированная террасная доска | V | ||
Стоимость домокомплекта в технологии Basic
|
по запросу | по запросу | по запросу |
Стоимость домокомплекта в технологии Optimi
|
по запросу | по запросу | по запросу |
Стоимость домокомплекта в технологии Premium
|
по запросу | по запросу | по запросу |
